Attraktive Verkaufsfläche zu vermieten
Zürichstrasse 17, 8607 Aathal-Seegräben
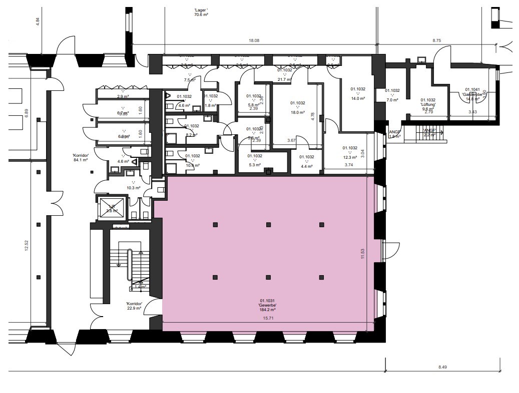
Wir vermieten per 01.01.2026 entlang viel befahrener Verkehrsroute diese attraktive Verkaufs-/Gewerbefläche. Die angebotene Fläche befindet sich im Erdgeschoss und umfasst eine grosszügige Fläche von ca. 184m2. Die Fläche bietet Ihnen folgende Vorzüge:
- Helle Fläche mit grossen Fenstern auf zwei Seiten
- Besucherparkplätze direkt vor dem Mietobjekt vorhanden
- Pausenraum mit Teeküche und Mikrowelle zur Mitbenützung für alle Mieter vorhanden
- Gut erschlossene Lage (PW und ÖV) Zürich / Flughafen Zürich / Winterthur: ca. 30 Minuten
St. Gallen: ca. 60 Minuten
Das Aathal passieren jeden Tag tausende von Pendler mit den Auto oder dem Zug. Für Sie und Ihre Kunden bestehen auf dem Areal diverse Parkmöglichkeiten (insgesamt 250 Parkplätze). Weitere Einkaufsmöglichkeiten und ein Restaurant locken bereits Laufkundschaft auf das Areal.
Wir würden uns freuen, wenn Sie mit Ihrer Business im Aathal ihren Sitz finden würden.
Haben wir Ihr Interesse geweckt? Wir freuen uns auf Ihre Kontaktaufnahme!
Kontakt
| Name | Julia Petrig |
| julia.petrig@hiag.com | |
| Telefon | +41 44 933 66 04 |
Details
| Referenznummer | 30420.304201031 |
| Kategorie | Gewerbe |
| Verfügbar ab | 01.01.2026 |
| Areal | 184 m2 |
| Stockwerk | EG |
| Raumhöhe | - |
| Grundstückfläche | - |






